Negozio con 6 vetrine in locazione Sant'Ambrogio

Milano - zona Cadorna - Castello

Rif: Niro120
Condividi Linkedin Whatsapp Stampa
€ 1.850.000
Vendita
Laboratorio
175 Mq
4 Vani
Classe energetica F
Nella bellissima via Nirone, sita tra Corso Magenta e di fronte l'ingresso dell'Università Cattolica, proponiamo esclusiva location unica nel suo genere composta da:
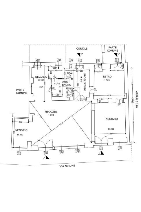
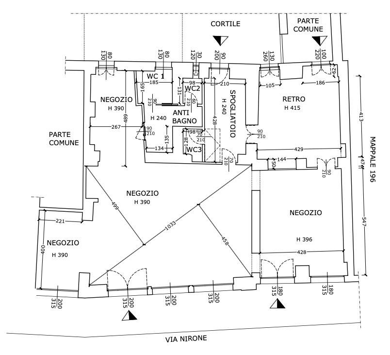
Negozio con canna fumaria sito in primaria posizione dotato di alta visibilità posto all'interno di uno stabile d'epoca con 6 vetrine su strada oltre varie luci poste all'interno corte.
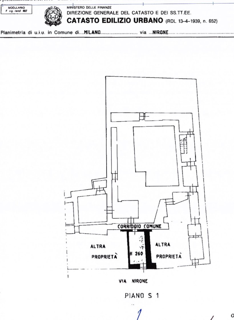
La location grazie alla sua ampia metratura può essere adibita a molteplici attività, la superficie commerciale del piano terra è di circa 170 mq, con area soppalco adibita a magazzino oltre due cantine poste al piano S1 adibite anch'esse a magazzino.
L'immobile si presenta come da planimetrie e foto inserite in annuncio.
Libero al rogito

Dettaglio immobile

Contratto Vendita
Rif Niro120
Prezzo € 1.850.000
Provincia Milano
Comune Milano
Zona Cadorna - Castello
Indirizzo Via Nirone 5
Superficie 175 mq
Vani 4
Classe energetica F (DL 192/2005)
EPI 65 kwh/m2 anno
Riscaldamento centralizzato
Condizioni nuova costruzione
Spese condominiali € 500
Ascensore no

Consistenze

Descrizione Superficie Sup. comm.
Principali
Negozio - piano terra 170 Mq 170 Mqc
Magazzino - piano interrato 10 Mq 3 Mqc
Magazzino - piano interrato 8 Mq 2 Mqc
Totale 175 Mqc

Video

Planimetrie

Richiedi maggiori informazioni

Autorizzazione al trattamento dei dati personali+
Dichiaro di aver letto l'informativa sulla privacy ed accetto le condizioni d'utilizzo del servizio.
Riempi il campo con il codice riportato nell'immagine*
Codice Captcha
FIAIP
Chiamaci Contattaci